Gellerupparken
Aarhus
Denmark
Collaborators:
︎︎︎ Ali Ajjawi
︎︎︎ Aarhus Kommune
︎︎︎ Gellerup Lokalhistoriske Arkiv
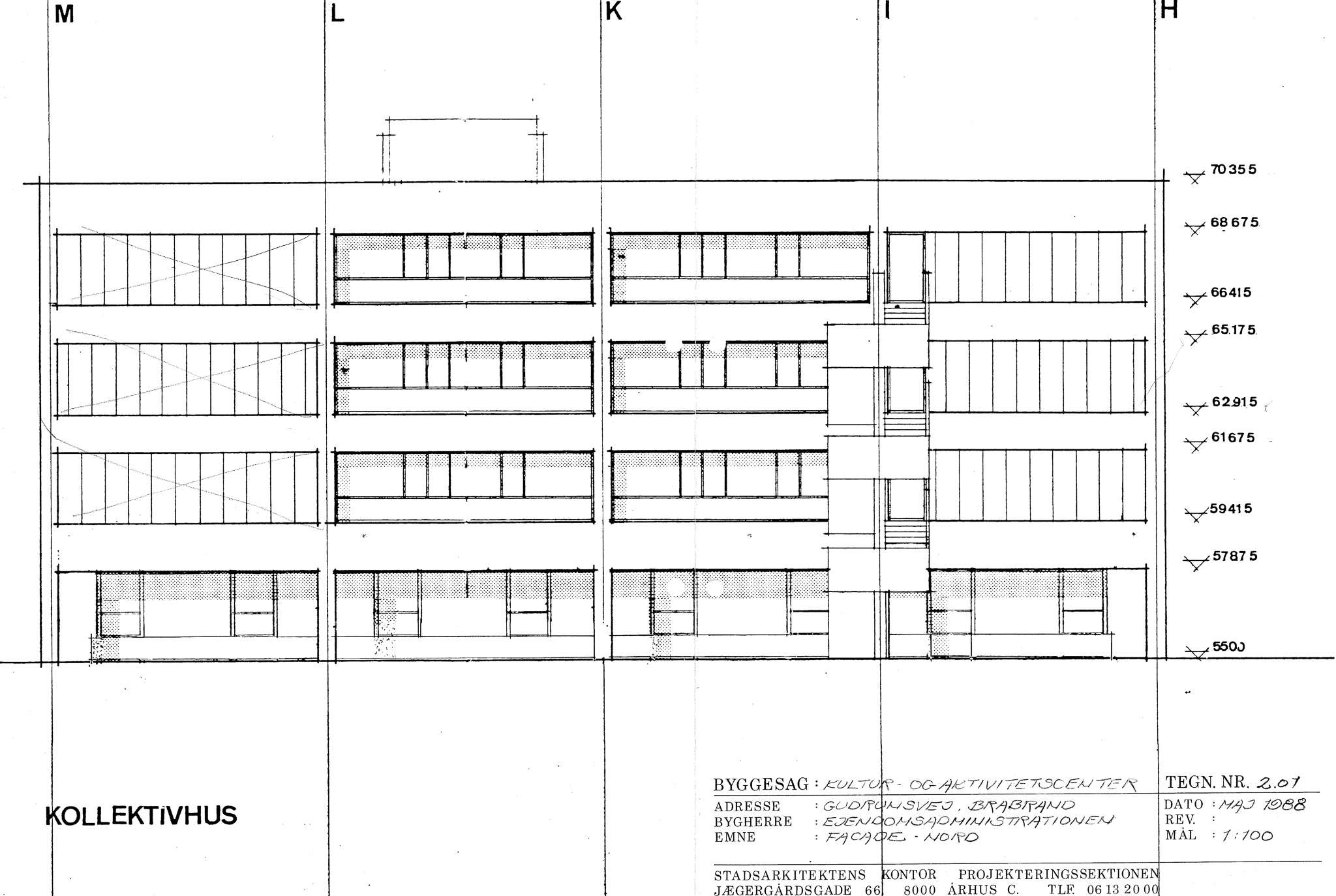
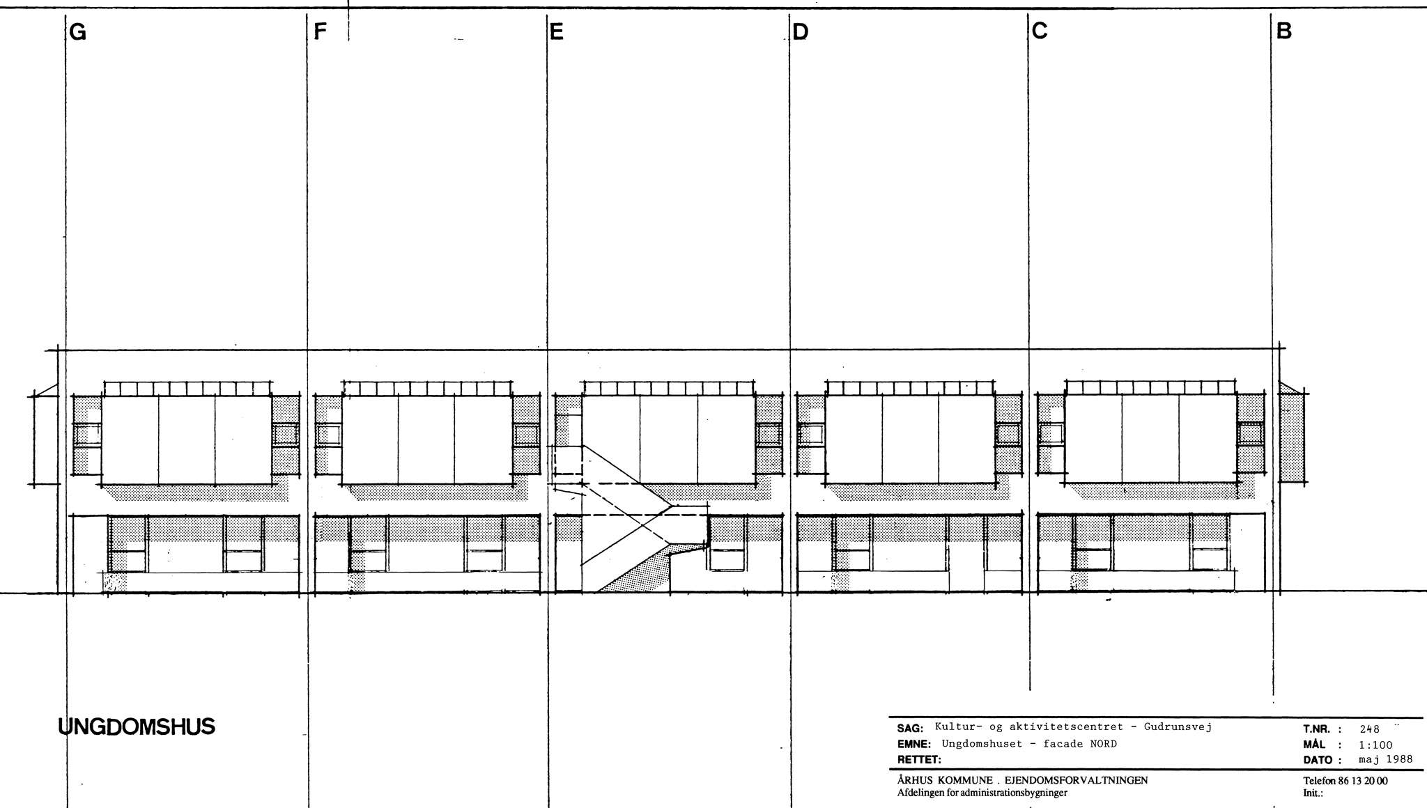
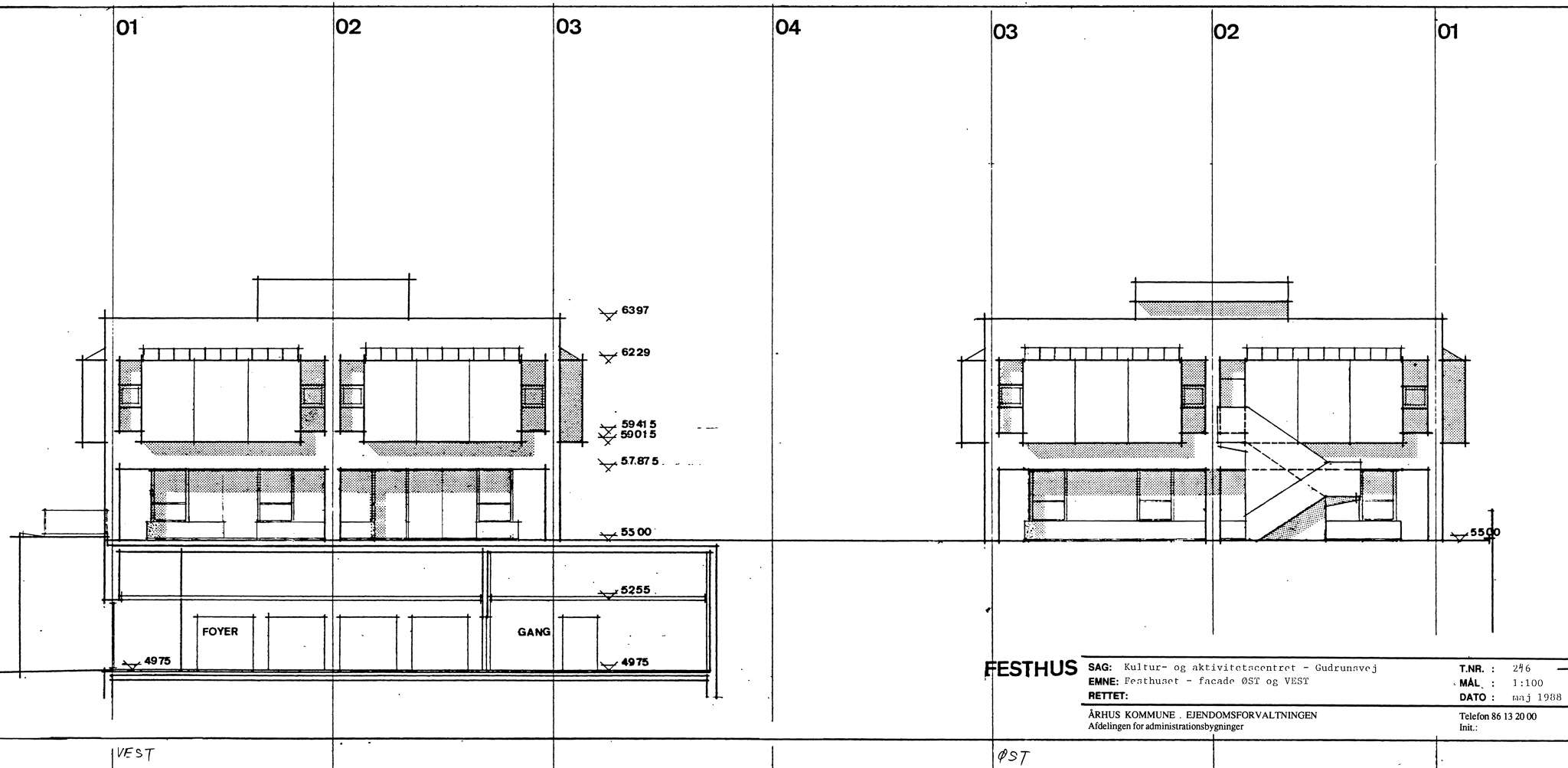
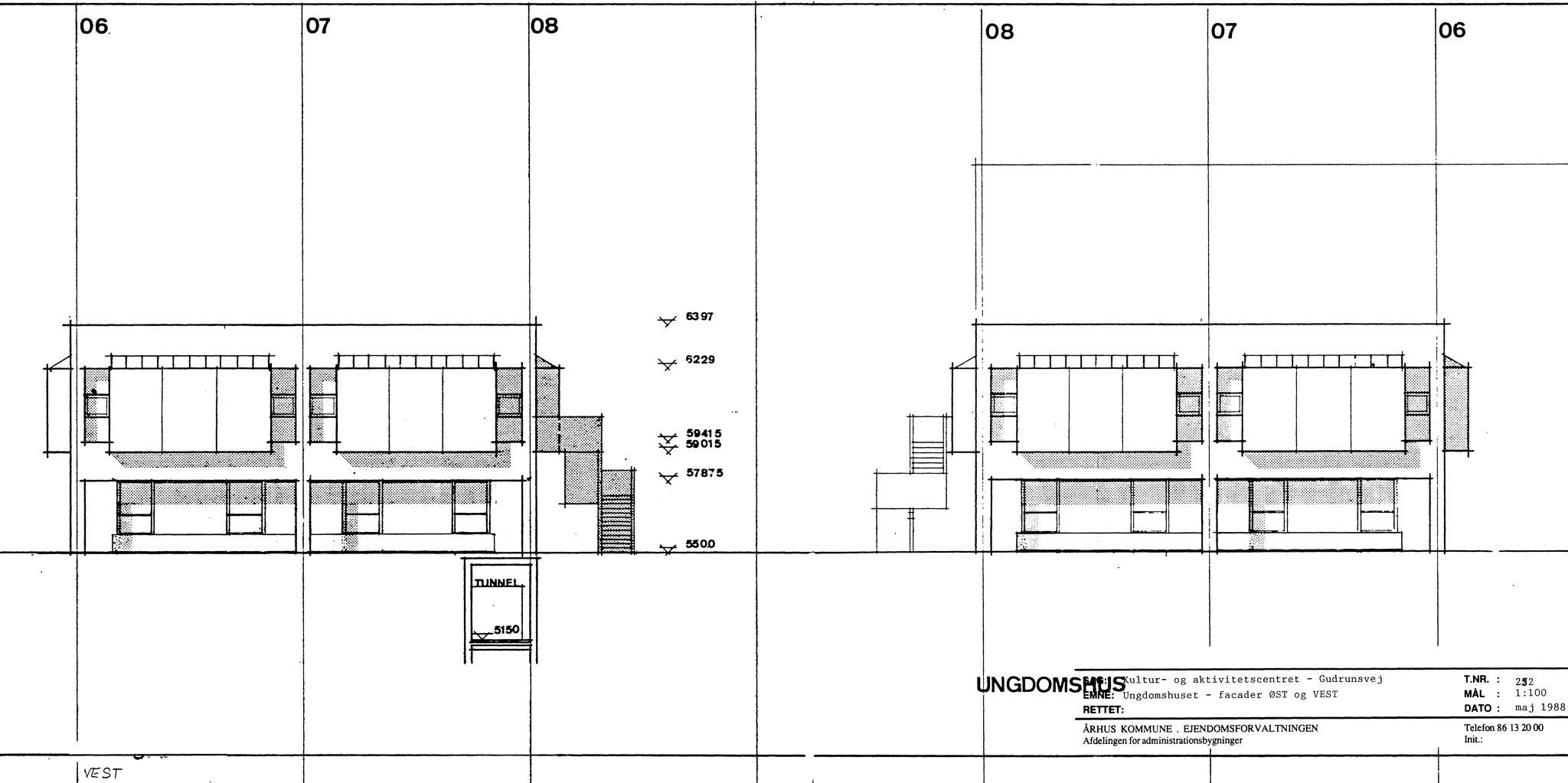
Fredspladsen, located in Gellerupparken, Aarhus, Denmark, was originally intended to act as Gellerup’s culture and activity centre. Originally slated for demolition, however, the decision was made by the Aarhus City Council in December 2022 to preserve and renovate the buildings with the goal to serve future community-building purposes.